Mercer Island Thrift Shop, recycling center renovations to take longer
Published 12:20 pm Monday, August 10, 2020
Planned renovation work on the Mercer Island Thrift Shop and Mercerdale Park-adjacent recycling center will take a little longer than expected.
Both projects, which were approved to move forward in the architect-engineer services and preliminary assessment processes by the city council in mid-June, seek to refurbish both spaces to streamline operations.
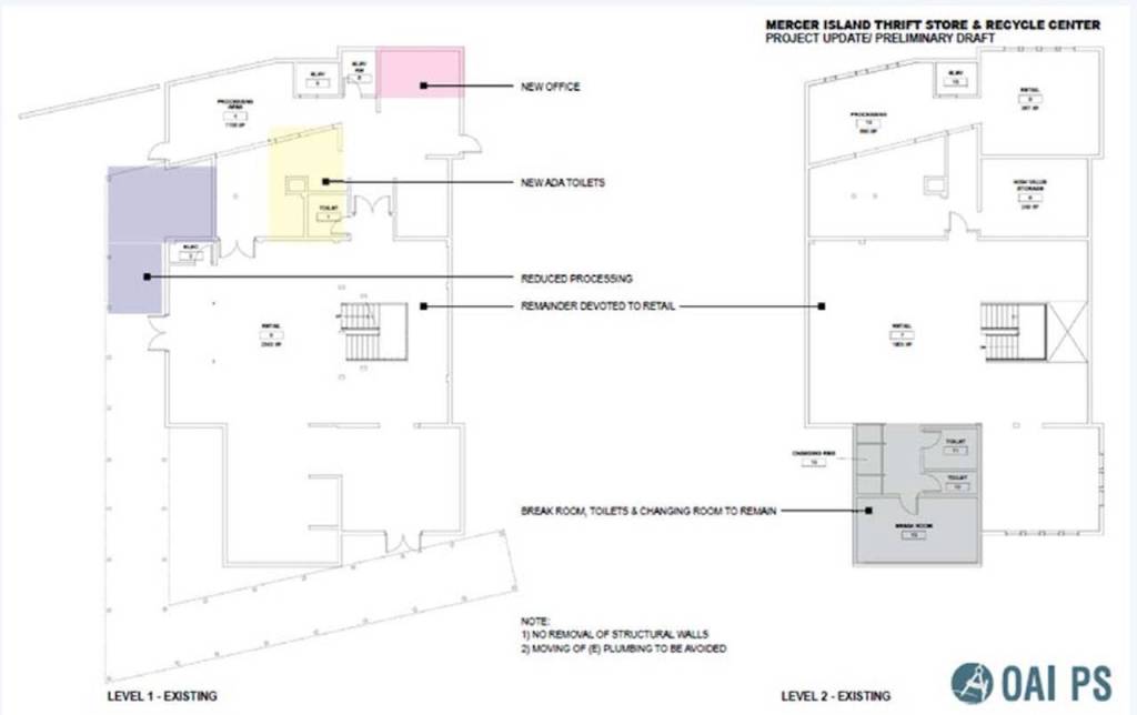
At the thrift shop, existing donation process areas would be decommissioned and a new office area and ADA restrooms would be built. In both cases, the spaces wouldn’t be expanded but rather adjusted.
According to the June 16 meeting agenda item, the combined cost of the two projects will likely come to about $500,000, though additional funding may be needed.
The thinking behind the renovations, as shared by City Manager Jessi Bon at the June meeting, is that because of COVID-19-related closures, now presented a good time to explore capital improvement projects that might be more onerous to pull off amid usual business operations.
At the time, Bon estimated that work on both areas would take about four months. Following the June 16 meeting, the city put out a request for qualifications. It received eight statements of interest. Three firms were selected for interviews.
But at the Aug. 4 Mercer Island City Council meeting, Bon said that she isn’t so sure renovations will be completed as quickly as originally thought, in part because of initial findings from selected firm Osborn Architects, Inc. (OAI) and other COVID-19-related obstacles.
“One of the reasons that we were pushing hard a month ago is we were optimistic about getting the thrift shop reopened for what I’ll call a semi-normal holiday season,” Bon said. “I’m less optimistic now that getting the thrift shop open before the end of the year is going to produce high revenue, given our COVID impacts.”
Bon said if she had to guess, she thinks it would be most realistic to see projects done closer to the end of 2020.
“There might be some challenges we didn’t foresee — totally normal,” Bon said.
Since Osborn was selected as the project’s preferred firm, they’ve done three site visits, looking at existing conditions. (Preliminary work for the project started July 22.) Bon clarified that there is still evaluation to be done, and that options are still not finalized.
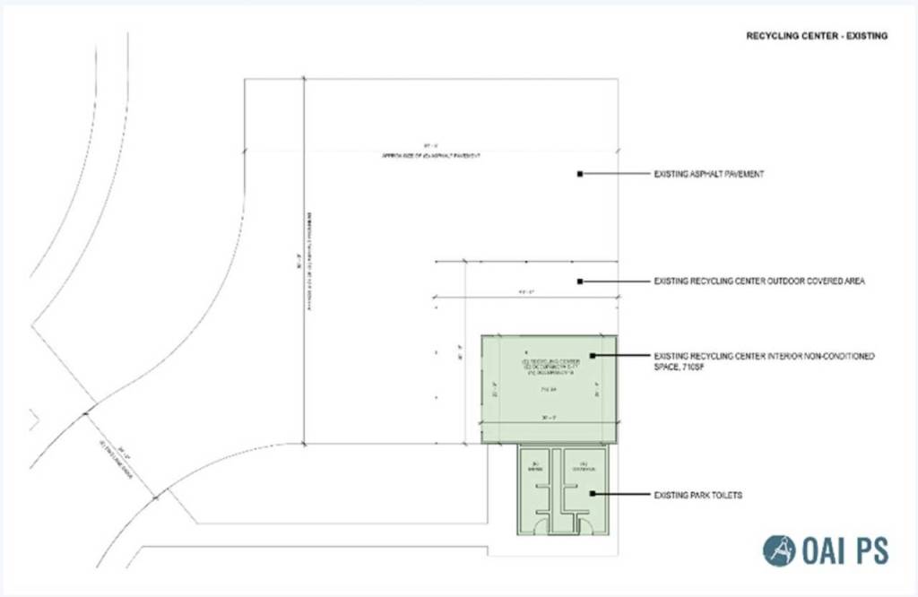
OAI project architect Anaïs Adamska said that removing or modifying the recycling center’s existing facility walls may not be as straightforward as believed at the outset.
“Big modifications on a building like this is not necessarily more cost-effective than replacing the structure with a new structure,” she said.
In looking at the thrift shop, Adamska said that OAI was concerned that the building itself had been expanded/modified at least three times, which could present difficulties. She said that a structural engineer affiliated with OAI did look at both the thrift shop and recycling center July 30. He will be putting together and sharing a more detailed report on both structures, Adamska said.
The city council isn’t meeting again until September. Public Works Director Jason Kintner said the hope is that that month, city staff return to the council with more information about the facilities, a more detailed analysis of renovation options and costs and updated engineer estimates.
The council asked a few clarifying questions but voiced no significant concerns at the Aug. 4 meeting.
Discussions around thrift-shop renovations are not exclusive to 2020 on Mercer Island. In both 2013 and 2018, refurbishing had been a topic of major interest — in 2018 a consultant was even hired to look further at the scope of potential work and cost estimates — but never moved into actual work.
The thrift shop itself has been closed since the spring of 2020 due to COVID-19 concerns. The majority of staffers have been laid off.
On the Island since 1975, the thrift shop’s proceeds have gone directly to the Mercer Island Youth and Family Services Department (YFS). It was projected pre-pandemic that the shop would garner some $2 million in revenue (or about 65 percent of the YFS fund) for 2020. Among the renovations’ purposes is that, when the shop does reopen, operations can be both more efficient and financially sustainable in the long-term.
Some $250,000 was allocated from Mercer Island’s contingency fund to sustain YFS operations through Aug. 31 at the city council’s June 2 meeting.
For the full discussion, watch the Aug. 4 city council meeting recording online. For more information about the update, go to the Aug. 4 meeting agenda item.
